http://karnaintrack.blogspot.com - Image examples of modern minimalist house floor plan sketches the latest and most popular trend in 2015. The house became important things in life. Comfortable home has always been the target of everyone. But sometimes the budget does not get if you have to build a house that looks great and stately buildings with an area of very large. But now the shelter is a scourge dream of many people is known for its minimalist elegant properties.
Related to sketch a picture example of modern minimalist house plans 2015, the house looks so elegant with a minimalist design that brings a sense of comfort simplenya, neat, clean nan unsightly and not much space is wasted or not tergunakan. But minimalist home decorating should also be adjusted to be more liveable.
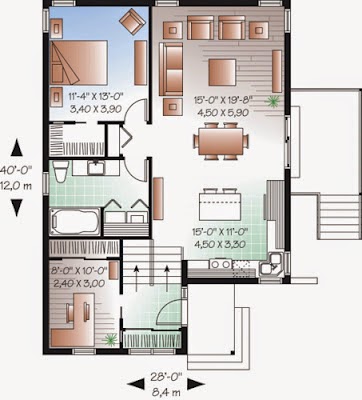
Sketch the house is an important thing to consider before building a modern minimalist dream house because the house becomes a reference sketch of the subject which is formed with the modern minimalist style. any room that needs to be included in our dream house, with a sketch of a minimalist home is able to answer all the desire in the construction of your dream home. Therefore, we present an example of a modern minimalist home sketch that became the dream man. Consider the example sketch below:
Minggu, 11 Oktober 2015
Well, that's a wide range of image examples of modern minimalist house floor plan sketches the latest and greatest in 2015 that is currently the target of many people. So first of our articles on modern minimalist home sketch. If you want to find pictures of minimalist house, just kinjungi our website at GambarMinimalisRumah.com . We provide a variety of information about a minimalist home. May be useful.
Thank you information about Sample Pictures of Modern Minimalist House Sketch Plan 2015 we have stated, may be useful to you in determining a comfortable home design untu you and your family, you can share the book mark or link https://karnaintrack.blogspot.com/2015/10/sample-pictures-of-modern-minimalist.html remedy more easily return to this blog and receive other information about the design of the house, thank you for visiting
Tag : Home Design,
Sample Pictures of Modern Minimalist House Sketch Plan 2015
By
Anonim
di
Oktober 11, 2015
Sample Pictures of Modern Minimalist House Sketch Plan 2015 - the house has many functions, namely, as the dwelling place of course, as a refuge from the problems of the outside such as natural disasters, disruption of wild animals, rain, sun, hurricanes and so forth. as a social place, a place of business such as opening stores, offices, and other sideline. the house can also be called as an investment in the future, that can be used to shelter our children's future or can be sold again, in a blog Stylish Interior Design Ideas Creating Original and Modern Homes we will discuss a lot of home design that certainly convenient for you live with your family, all right now we discuss the information about Sample Pictures of Modern Minimalist House Sketch Plan 2015
Articles : Sample Pictures of Modern Minimalist House Sketch Plan 2015
full Link : Sample Pictures of Modern Minimalist House Sketch Plan 2015
Article Home Design,
Articles : Sample Pictures of Modern Minimalist House Sketch Plan 2015
full Link : Sample Pictures of Modern Minimalist House Sketch Plan 2015
Article Home Design,
You can also see our article on:
Sample Pictures of Modern Minimalist House Sketch Plan 2015
just so many articles Sample Pictures of Modern Minimalist House Sketch Plan 2015
hopefully Sample Pictures of Modern Minimalist House Sketch Plan 2015 information can provide benefits in determining the home that suits your needs.
Thank you information about Sample Pictures of Modern Minimalist House Sketch Plan 2015 we have stated, may be useful to you in determining a comfortable home design untu you and your family, you can share the book mark or link https://karnaintrack.blogspot.com/2015/10/sample-pictures-of-modern-minimalist.html remedy more easily return to this blog and receive other information about the design of the house, thank you for visiting
Tag : Home Design,
Tags :
Home Design
Langganan:
Posting Komentar (Atom)






0 komentar:
Posting Komentar